THE CIRCULAR social HUB

Location: Salford, United Kingdom

Year: August 2023


The Story

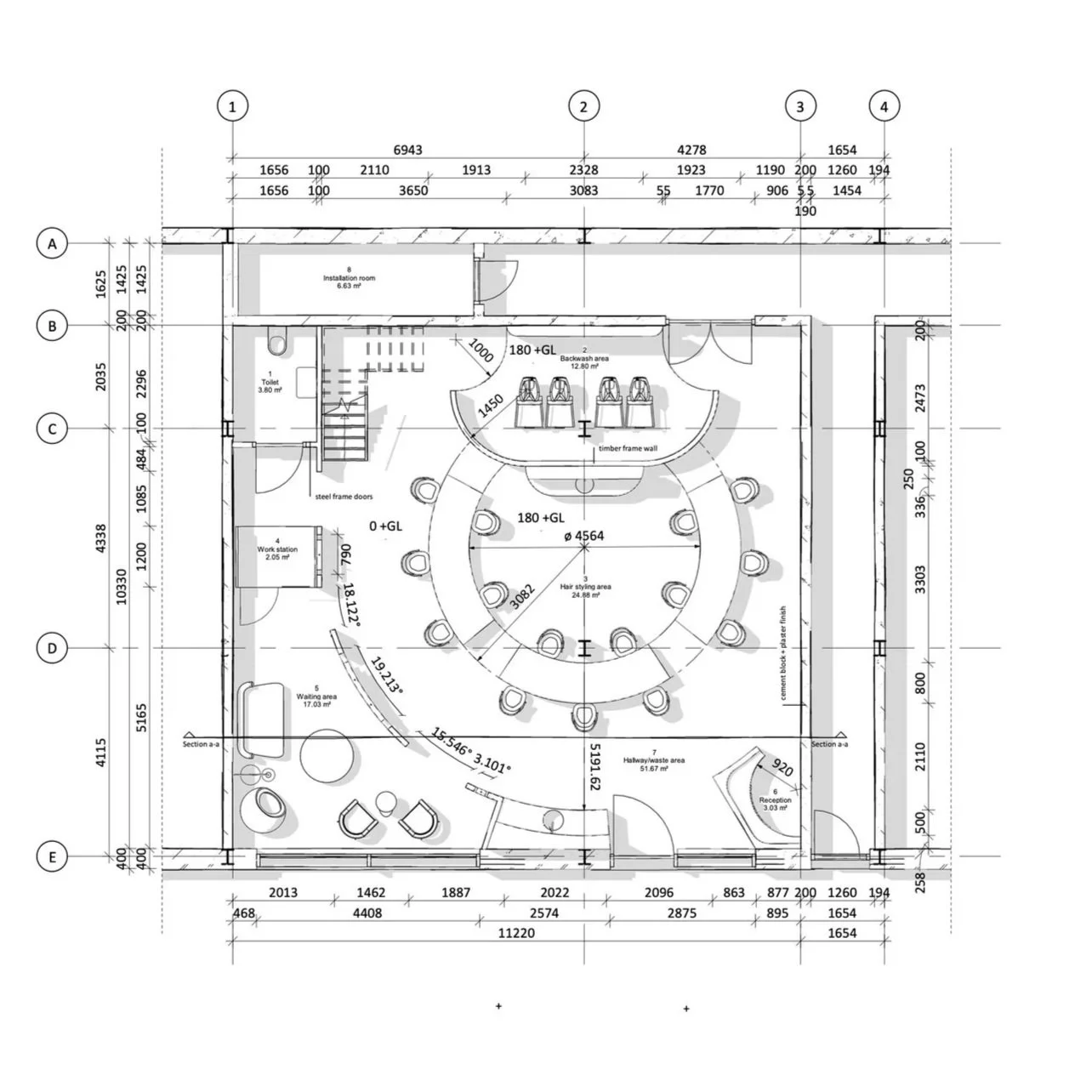
The Avesta Hair Salon project expands and reimagines the existing Avesta salon in the heart of Salford, preserving its original social and industrial design language while introducing a circular layout as a new social hub. The central parliament-style hair styling table encourages clients and staff to see, communicate, and engage with one another, fostering continuous interaction, reflection, and collaboration across the space.

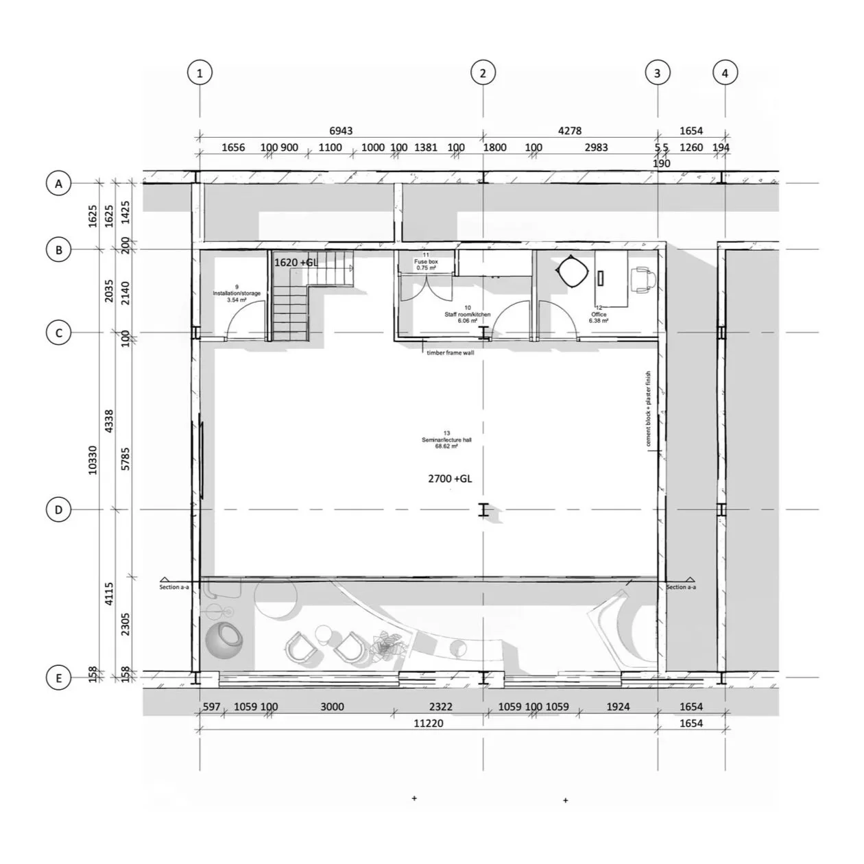
The design integrates custom furniture, considered circulation paths, and carefully chosen colour schemes to reinforce openness, social inclusivity, and comfort. The industrialized aesthetic of the original salon is carried forward through materials and detailing, giving the expansion a cohesive identity while highlighting its modern, interactive purpose. An additional mezzanine floor provides educational space, allowing the salon to function as a learning hub on designated days. I contributed as architectural designer, furniture designer, builder, and project manager, coordinating all stakeholders to ensure the expansion respected the original salon’s character while creating a socially engaging and innovative environment.

Previous
Previous

Technical Drawings

Next
Next

Luna Solece