Technical analysis and performance improvment

Parties: Ieva Davulyte, Christopher Clarkson, Iman Ramshini, Katrine Natorp

Location: Zaandam, Netherlands

Year: 5th Semester, Bachelor’s 2021


The Story

The Sports Hall Zaandam is organized through a grid and measurement system consisting of main and secondary grid lines. The main grid lines align with the primary load-bearing structural elements, while the secondary lines organize smaller structural parts. Key grid lines define the building’s structural frame and divide the sports hall into functional zones, influencing the foundation system and floor structures.

The building façade uses 40 mm polycarbonate panels, creating a transparent architectural appearance while also functioning as sun protection. Although lightweight and visually effective, the material has limitations due to its flammability rating, which can be less suitable for steel structures.

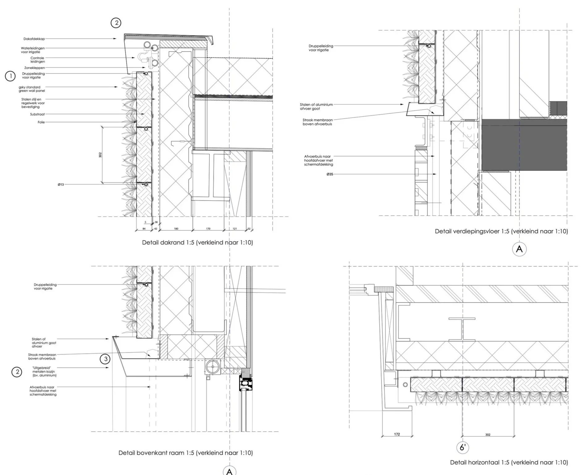
A green façade system (GSky ProWall) is proposed to introduce vegetation on the building envelope through a steel support structure with planted trays. While this system enhances environmental quality and visual dynamics, it requires regular maintenance and irrigation. The surrounding site emphasizes greenery, with about 61% green space, helping mitigate the urban heat island effect.

Environmental analyses, including shadow studies and ENVI-met climate simulations, evaluate sunlight, wind, temperature, and humidity around the building. These studies help optimize the design to improve microclimate conditions and reduce heat stress in the surrounding urban environment.

Previous
Previous

Thresholds of Power

Next
Next

Inclusiv(c)ity